スパシエエール横浜 204

7.6万円

管理 / 共益費 8,000円

神奈川県横浜市鶴見区生麦1丁目1-24

京浜東北線「新子安」駅徒歩10分

京急本線「京急新子安」駅徒歩10分

京急本線「生麦」駅徒歩10分

賃料
7.6万円
敷金(保証金)
1ヶ月(-)
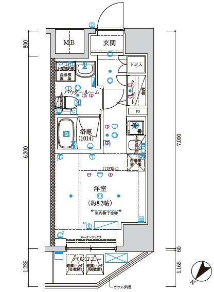
間取り
1K
向き
北西
所在地
神奈川県横浜市鶴見区生麦1丁目1-24
管理 / 共益費
8,000円
礼金
0ヶ月
専有面積
21.61㎡
築年月
2019年12月(築5年)
交通

京浜東北線新子安」駅 徒歩10分

京急本線京急新子安」駅 徒歩10分

京急本線生麦」駅 徒歩10分

物件の特徴

  • バストイレ別

  • 室内洗濯機置場

  • TVモニタ付きインターホン

  • オートロック

  • エレベーター

基本情報

保証金
-
敷引 / 償却
- / -
敷金積み増し
-
間取り / 詳細
1K
K 2.0帖/洋室 8.3帖
向き
北西
専有面積
21.61㎡
バルコニー
(テラス)面積
-
所在階 / 階建て
2階 / 11階建
建物構造
鉄筋コンクリート
築年月
2019年12月(築5年)
種別
賃貸マンション
保険会社 / 料金
有  15,000円  / 2年
保証会社 / 料金
必加入 / その他
JACCS 初回保証料/総賃料の50% 年間保証料/10,000円 口座振替手数料/350円
現況
空家
入居可能時期
即時
その他条件
事務管理手数料:1万1,000円  鍵交換代:2万8,600円

設備条件

設備条件
  • ペット相談 / 室内洗濯機置場 / フローリング / 都市ガス / 公営水道 / 公共下水 / エレベーター / ガスコンロ / コンロ2口以上 / システムキッチン / バス・トイレ別 / エアコン / オートロック / TVモニタ付インターホン / ディンプルキー

その他

契約期間
2年
賃貸区分
一般
更新料
-
更新事務手数料
-
総戸数
-
特優賃
-
取引態様
専任媒介
物件番号
95219422
管理コード
-
情報更新日
2025年11月11日
次回更新予定日
2025年11月19日

スパシエエール横浜

スパシエエール横浜

7.6万円

8,000円

1K(21.61㎡)

お気軽にお問い合わせください

無料お問い合わせ

株式会社ウィルマネージメント

03-5459-3600

10:00~19:00

(休:毎週日曜日・GW・夏季・年末年始)