ベルジェンド文京千駄木グレイス

16万円 管理/共益費 20,000円

東京都文京区千駄木4丁目21-4

山手線「西日暮里」駅徒歩8分

千代田線「千駄木」駅徒歩8分

価格
16万円 管理/共益費 20,000円
間取り/面積
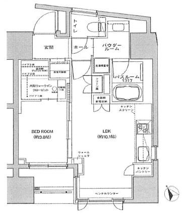
1LDK/40.76㎡
所在地
東京都文京区千駄木4丁目21-4
築年
2015年8月(築10年)
駐車
交通

山手線西日暮里」駅 徒歩8分

千代田線千駄木」駅 徒歩8分

ベルジェンド文京千駄木グレイスの基本情報

物件名
ベルジェンド文京千駄木グレイス
価格
16万円
管理/共益費
20,000円
築年月
2015年8月(築10年)
総戸数
-
所在地
東京都文京区千駄木4丁目21-4
交通

山手線西日暮里」駅 徒歩8分

千代田線千駄木」駅 徒歩8分

ベルジェンド文京千駄木グレイスの詳細情報

設備条件
  • エレベーター
  • 駐輪場
  • 敷地内ごみ置き場
  • 光ファイバー
  • オートロック
  • 宅配ボックス
  • 防犯カメラ
設備(その他)
    -
駐車場/月額
無/-
用途地域
-
戸数
- / -
取引態様
専任媒介

ベルジェンド文京千駄木グレイスで募集中の物件

  1. 202

    12.32坪 (40.76㎡)

    16万円(12987.01円/坪)

近隣の物件

  1. 文京区水道1丁目

    1K (25.39㎡)

    11.2万円

ベルジェンド文京千駄木グレイス

お気軽にお問い合わせください

無料お問い合わせ

株式会社ウィルマネージメント

03-5459-3600

10:00~19:00

(休:毎週日曜日・GW・夏季・年末年始)